Şömine Odunlu Şömine Modelleri C2 İki Yönü Açık (Tünel) Şömineler

KEYİFLİ
Hem Isının Hem Odun Ateşinde Sucuk Ekmeğin, Izgaranın ve Güvecin Keyfini Çıkarın…
KONFORLU
Asansör Kapaklı, Isınmayan Akıllı Kolu, Otomatik Hava Ayarı, İslenmeyi Önleyen Hava Perdesi ile Kokusuz, Dumansız Kaliteli Yanış…
FONKSİYONEL
Çift Kullanımlı Hem Açık Hem Kapalı Kullanılabilen. Uluslararası Belgeye Sahip Tek Şömine Sistemi…
PRATİK
Tutuşturmayı kendi Üfleyerek Yapar. Bir Kaç Çıra ve Bir Gazete Kağıdı Yeter.
Geleneneksel Ocak Keyfi ile Çağdaş Teknoloji Aynı Şöminede…


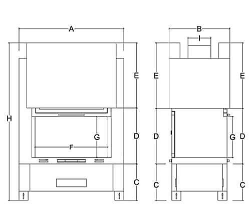
| A | B | C | D | E | F | G | H | I | kW | Kg | |
| C2 95 | 95 | 82 | 47 | 61,5 | 71,5 | 65 | 45 | 180 | 25 | 12 | 360 |
| C2 115 | 115 | 82 | 47 | 61,5 | 71,5 | 80 | 45 | 180 | 30 | 15 | 420 |
| C2 135 | 135 | 82 | 47 | 61,5 | 71,5 | 100 | 45 | 180 | 30 | 17 | 480 |
| C2 155 | 155 | 82 | 47 | 61,5 | 71,5 | 120 | 45 | 180 | 30 | 21 | 540 |

KEYİFLİ
Hem Isının Hem Odun Ateşinde Sucuk Ekmeğin, Izgaranın ve Güvecin Keyfini Çıkarın…
KONFORLU
Asansör Kapaklı, Isınmayan Akıllı Kolu, Otomatik Hava Ayarı, İslenmeyi Önleyen Hava Perdesi ile Kokusuz, Dumansız Kaliteli Yanış…
FONKSİYONEL
Çift Kullanımlı Hem Açık Hem Kapalı Kullanılabilen. Uluslararası Belgeye Sahip Tek Şömine Sistemi…
PRATİK
Tutuşturmayı kendi Üfleyerek Yapar. Bir Kaç Çıra ve Bir Gazete Kağıdı Yeter.
Geleneneksel Ocak Keyfi ile Çağdaş Teknoloji Aynı Şöminede…
• Asansör Kapaklı
• Triptronik, Açık ve Kapalı Kullanımlı
• Otomatik Damperli
• İslenmeyi Önleyen Hava Perdesi
• Pik Döküm Ateşlik
• Çift Cidarlı Çelik Isı Odalı
• Hızlı Tutuşturma Mekanizmalı
• Yana Açılır Temizlik Kapaklı
• Vitro Seramik Camlı
• Küllük Çekmeceli
• Kızmayan Özel Kapak Kolu
• Radyan ve Konvansiyonel Hava Isıtmalı
• Isı Tutucu Panelli
• Fan (Opsiyonel)
• Norm CE EN13229
• Asansör Kapaklı
• Triptronik, Açık ve Kapalı Kullanımlı
• Otomatik Damperli
• İslenmeyi Önleyen Hava Perdesi
• Pik Döküm Ateşlik
• Çift Cidarlı Çelik Isı Odalı
• Hızlı Tutuşturma Mekanizmalı
• Yana Açılır Temizlik Kapaklı
• Vitro Seramik Camlı
• Küllük Çekmeceli
• Kızmayan Özel Kapak Kolu
• Radyan ve Konvansiyonel Hava Isıtmalı
• Isı Tutucu Panelli
• Fan (Opsiyonel)
• Norm CE EN13229

| A | B | C | D | E | F | G | H | I | kW | Kg | |
| C2 95 | 95 | 82 | 47 | 61,5 | 71,5 | 65 | 45 | 180 | 25 | 12 | 360 |
| C2 115 | 115 | 82 | 47 | 61,5 | 71,5 | 80 | 45 | 180 | 30 | 15 | 420 |
| C2 135 | 135 | 82 | 47 | 61,5 | 71,5 | 100 | 45 | 180 | 30 | 17 | 480 |
| C2 155 | 155 | 82 | 47 | 61,5 | 71,5 | 120 | 45 | 180 | 30 | 21 | 540 |

Çünkü;